Отдых в стиле прованс
Новая работа ND Studio — интерьер подмосковного загородного дома. Это продуманное до мелочей пространство сочетает камерность, элегантность и артистизм

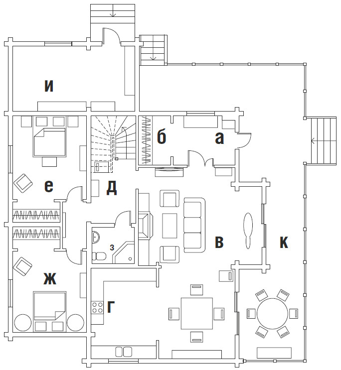
Коттеджный поселок на Ярославском шоссе — приятное атмосферное место. Он находится в сосновом лесу, и все дома построены из дерева в едином стиле. Так же и ландшафт выдержан в общей для всех соседей природной стилистике. Хозяева этого дома, супруги с тремя детьми, купили здесь двухэтажный рубленый дом с удачной планировкой: «вторым светом» в зоне гостиной и столовой, уютной кухней в нише и с четырьмя спальнями (две наверху, две внизу). Но интерьер еще только предстояло сделать, и хозяева пригласили Марию Данелию, Олега Никитина и Марину Серебряную, чья стилистика им очень импонировала.
Они попросили дизайнеров создать комфортное пространство дачи, где и ощущалась бы связь с прошлым, и присутствовала доля современной иронии.










Авторы предложили взять за основу стиль прованс, и хозяева, которые много путешествовали по Франции, с энтузиазмом приняли это предложение. По мысли дизайнеров, этот стиль в их авторской трактовке должен был связать воедино интерьер и экстерьер дома, а главное — создать умиротворяющую и при этом нескучную атмосферу дачи. Авторский прованс Марии Данелия и Олега Никитина выглядит небанально, артистично, тепло. «Я понимаю прованс так, — объясняет Мария Данелия философию стиля, — это новая жизнь, которая дается старым вещам. Исторически французы предпочитали не расставаться с отслужившей свое мебелью, а отвозили ее в провинцию, в старый дом, там преображали, красили… Сложилась определенная система, и мебель французского прованса — очень часто это именно крашеная мебель. Действительно, проще всего привести в порядок старую мебель, просто ее покрасив. Но когда уже сформировался такой подход, такая концепция, она стала стилеобразующей, и в ее рамках дизайнер может создать что-то, что само по себе приобретает новую ценность». Проводя экскурсию по дому, Мария показывает на спинку кровати в пастельно-бирюзовой гостевой спальне. Спинка не просто окрашена с эффектом старения: на ней роспись, которая создает рельеф на поверхности — и таким образом кровать становится предметом искусства в стиле прованс. Еще пример — подчеркнуто маленький балдахин в спальне хозяев как ироническое напоминание об эпохе, когда балдахины были функциональным предметом обстановки и защищали от сквозняков. Или: в гостевой комнате на втором этаже внушительная по размеру скульптура петуха, сваренная из металлических листов. Похожие вещи ремесленного изготовления дизайнеры видели на рынках выходного дня во Франции, но в итоге купили скульптуру Andrew Martin в Москве, в шоуруме De Luxe Home Creation. Там же приобрели скульптуру лошади: она собрана из кусочков дерева, укрепленных на металлическом каркасе. «Такое дерево находят на берегу моря, — рассказывает Олег Никитин. — У этого материала замечательная природная энергетика». Особое место в интерьере принадлежит искусству: это графика режиссера Георгия Данелия, Николая Данелия, Реваза Габриадзе, живопись Анатолия Зверева, Игоря Майорова, Виталия Стесина и Леонида Седова. Арт, необычные предметы, игра с масштабами, богатая цветовая палитра — всё это составные части уникального авторского кода.
Общая площадь 190 м2


Авторы проекта дизайнеры Мария Данелия, Олег Никитин, архитектор Марина Серебряная, ND Studio
Поставка мебели компании Trocadero, Inlavka
Поставка текстиля. скульптуры и декор Andrew Martin компания De Luxe Home Crea