Со знаком качества
Дизайнеры Мария Танская и Ксения Земрау совершили экскурс в 20‑е годы прошлого столетия, создав элегантную, нарядную и в то же время современную вариацию на тему ар–деко

Ар–деко в интерьере этой петербургской квартиры появилось с подачи хозяйки — большой поклонницы стиля, которая обратилась в студию «Арт–Концепт» после того, как увидела интерьер, спроектированный Марией Танской и Ксенией Земрау в схожей стилистике. «Ар–деко сейчас находится на пи‑ ке популярности и не перестаёт быть актуальным благодаря большой вариативности и практически неограниченным возможностям для творчества, и работа в нём доставляет нам большую радость и удовольствие,—говорит Мария.—Конечно, это не значит, что нам не интересны другие интерьерные направления в дизайне. Но если заказчику близка роскошная и респектабельная стилистика, то именно ар–деко, как нам кажется, позволяет воплотить самые интересные и эффектные решения».






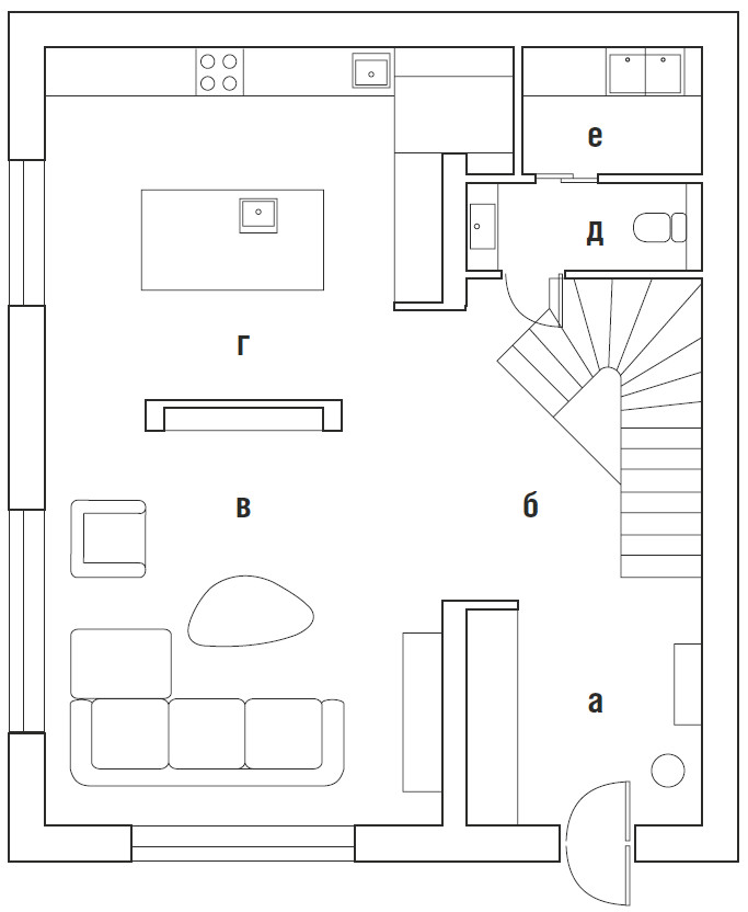
В функциональном плане запрос хозяев — супружеской пары — звучал так же чётко и ясно. Они хотели получить комфортное приватное пространство, максимально отвечающее их укладу жизни. Так, из перечня требуемых помещений исчезло, казалось бы, такое обязательное, как столовая: хозяева редко принимают гостей и обеденному столу предпочли барный остров. Точкой притяжения в гостиной стал исключительно комфортный диван, с первого взгляда привлекающий к себе внимание и собирающий вокруг себя пространство. Зоны кухни и гостиной разделены перегородкой, в неё интегрированы телевизионные панели с двух сторон, а также камин, который является не только декоративным акцентом, но и функциональным элементом — источником тепла и символом домашнего очага.
Дизайнеры Мария Танская и Ксения Земрау совершили экскурс в 20‑е годы прошлого столетия, создав элегантную, нарядную и в то же время современную вариацию на тему ар–деко
Предмет особой гордости дизайнеров—лестница, ограждение которой берёт начало… из люстры. Эта необычная концептуальная идея появилась не сразу, ей предшествовали долгие поиски и обсуждения. «Мы рады, что в жизнь воплотился именно этот вариант: люстра, «падающая дождём» на лестницу и являющаяся одним целым с ней. Реализовать замысел было непросто — над конструкцией работало несколько компаний–подрядчиков. Но получилось именно так, как было задумано», — комментирует Мария. В интерьере вообще много элементов, выполненных по индивидуальному проекту. Это не только мебель в спальне, гардеробной, ванной комнате и на кухне, но и двери, и хрустальные люстры, и отдельные декоративные элементы, такие как вставки из художественно обработанных стёкол, оттеняющие оникс, панели с покрытием soft–touch и др. «Эта работа — плод постоянных обсуждений с хозяйкой квартиры, которая в буквальном смысле заражала своей энергией, — добавляет Ксения. — Мы старались создать современный интерьер, вдохновлённый ар–деко, и, начав с более лаконичного образа, постепенно пришли к более роскошному: многие вещи стали ярче, выразительнее, появилось больше блеска, больше уникального, неповторимого шарма».








Общая площадь 157 м2


Авторы проекта Мария Танская, Ксения Земрау (студия «Арт–Концепт», г. Санкт–Петербург)
Фото: Александра Курлыгина
