Новая жизнь
Бюро Тамары Григорьевой Grigoreva.design полностью переосмыслило интерьер и экстерьер дома и участка в Сочи: лаконичная архитектура, сбалансированный интерьер и атмосфера гармонии

История эта начиналась так: заказчики приобрели готовый дом и решили полностью его преобразить. «Клиенты — взрослая интеллигентная пара, для меня они — образец семейственности и любви, — рассказывает Тамара Григорьева. — Они нашли меня, посмотрев видеообзор квартиры актёра Александра Петрова, которую я сделала. Оставили заявку на нашем сайте и предложили мне заняться проектом в Сочи. Я с удовольствием откликнулась на их предложение. Основные пожелания владельцев были такие: сохранить свободное пространство, дать максимум «воздуха», а также использовать спокойные оттенки и натуральные материалы». Но прежде чем приступить к проектированию, дизайнер и заказчики обсудили концепцию интерьера, ее смысловую и стилистическую составляющие, и только убедившись, что они совпадают в видении будущего интерьера, началась работа.
Дом и участок создан в комплексе. Коман да Тамары Григорьевой разработала дизайн фасадов основного здания, помещения СПА и фитнеса, а также спроектировала отдельный павильон для приема гостей. Семья заказчиков принимала непосредственное участие во всех вопросах — и касающихся постройки новых зданий, и преобразования уже имеющихся на территории.



















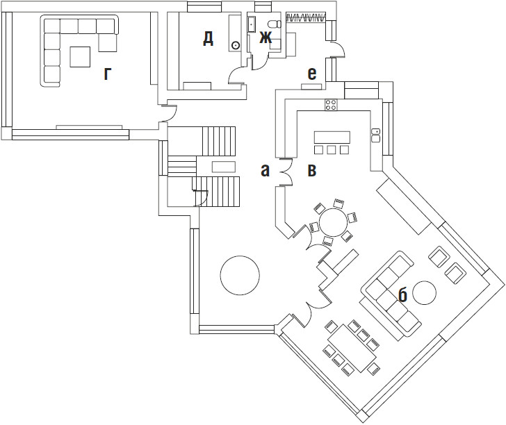
Планировка дома — логичная, продуманная — уже была задана имеющимся архитектурным решением. Дом пронизан светом, и от дизайнера требовалось только подчеркнуть эту гармонию света и формы. «Был момент, когда все функции были распределены между помещениями, и под вопросом оставалось только пространство большого холла, — вспоминает автор проекта, — оттуда через панорамное остекление открывается прекрасный вид на утопающие в зелени горы. С точки зрения архитектурной композиции именно в этом месте проходит центральная ось здания. Не было необходимости наделять это большое пространство какой‑то специальной функцией, и мы решили наделить его смыслом. Так в центре холла появилась клумба с большими декоративными растениями, которая стала сердцем не только дома, но и всего участка: она связывает пространство дома с окружающей природой». Кроме того, организовали правильный ракурс на виды за окнами в главной спальне. Для этого радикально пересмотрели планировочное решение, выдвинув кровать в центр комнаты и организовав вместительное рабочее пространство за изголовьем. Такое решение позволило открыть максимальный обзор углового панорамного остекления. Теперь хозяевам удобно наслаждаться видами природы, просыпаясь и засыпая. Дизайнеры не хотели делать интерьер нарочито модным, наоборот, старались создать интерьер вне времени, который будет актуален долго. Специально для этого пространства они сформулировали пять базовых принципов. «Это, во‑первых, дружественное отношение к окружающей среде, — перечисляет Тамара Григорьева. — Мы понимаем дом и интерьер как часть общей экосистемы. Во-вторых, это «проникновение» экстерьера в интерьер, а значит — использование материалов, характерных для конкретной местности (местные сорта камня, породы дерева). В-третьих, это минимализм как часть философии «осознанного потребления». Поэтому и в стилистике — простые решения и чистые линии. В-четвертых, комфорт и функциональность пространства для каждого члена семьи. В-пятых, дизайн, выгодно подчеркивающий архитектуру дома; ощущение легкости, света и воздуха». Такой подход принес замечательный результат: получилось уникальное пространство с атмосферой спокойствия и гармонии, которая способна буквально исцелять, восстанавливать ресурсы. А это так необходимо для всех, и особенно для тех, кто привык жить в бешеном ритме большого города.
Общая площадь 403 м2


Автор проекта архитектор-дизайнер Тамара Григорьева, студия Grigoreva.design