В этом современном и лаконичном интерьере по проекту Оксаны Сальберг–Вачнадзе привлекают внимание нестандартные планировочные решения и филигранная работа с цветом и фактурами
Текст: Ольга Вологдина
Зона гостиной зонирована с помощью двух больших диванов Minotti. На полу— широкая инженерная доска из натурального дуба. Журнальные столики, Baxter. Колонки, Bang & Olufsen. Ковёр, Dovlet house. На столике—скульптура Софии Карнукаевой. Настольная лампа, Oluce. Подушка, AtelierTati
Заказчиками Оксаны Сальберг–Вачнадзе стала московская семья с двумя детьми. Они хотели получить интерьер в спокойных серых тонах с яркими акцентами. Ставку дизайнер сделала на сочетание разных материалов (натуральный камень, дерево, керамогранит) — одним словом, фактур в схожих оттенках из серо–бежевой палитры — и постаралась «не перегрузить» пространство. Оно и в самом деле масштабное, и тут можно было применить множество фишек. Но именно из–за размера оно потребовало лаконичных, крупных решений: таких, как камин в отделке из натурального гранита Alaska White, единый серый цвет стен, белые панели с серыми рустами, огромная лаковая панель за телевизором, позволяющая спрятать чёрный телевизор на чёрной панели, необыкновенной красоты слэб мрамора Macchia Vecchia в ванной комнате. Большое пространство объединяет отделка пола: для неё выбран максимально широкий формат доски (260 мм), который положили во всех жилых помещениях. Стиль интерьера Оксана называет современным минимализмом, который отличается от минимализма 2000–х годов разнообразием материалов, фактур, оттенков и отсутствием строгой геометрии.
Автор проекта дизайнер Оксана Сальберг–Вачнадзе
Общий вид гостиной. Консоль, Meridiani. Стеллаж, Cattelan Italia. Жёлтый винтажный светильник, Yellow Line
Застройщиком был предусмотрен в квартире настоящий дровяной камин, который стал центром притяжения гостиной. Его портал выполнен из латуни и патинирован вручную в чёрный цвет, над ним — панно из цельной плиты натурального гранита (весом более 300 кг) с выразительным рисунком, выполненное компанией Stoneroom. Кресла, Flexform. Светильник, Vibia. Скульптура работы Софии Карнукаевой. Подушки, ATELIERTATI
Фрагмент гостиной. На стене — картина «Номер один» работы Зорикто Доржиева. Диван, Minotti. Подвесной светильник, Vibia
Радиусная стена в кабинете–библиотеке оформлена стеллажом, повторяющим её сложную форму. Стулья, Meridiani. Письменный стол, Poliform. Диван, Ditre Italia. Настольная лампа и торшер, Baker. Шторы, компания «Форма Т». Зелёная настольная лампа, Yellow Line. На стеллаже — вазы от 101 Copenhagen и Ligne Roset, салон GK Concept. Картина «Всадник», Зорикто Доржиев. Ковёр, Kovër büro
Кухню по просьбе хозяев оборудовали в отдельном помещении, отделённом от пространства гостиной–столовой стеклянной перегородкой. Круглый столик, Minotti. Синие стулья, Bonaldo. Светильник, Vibia. Кухня, Leicht + Häcker. Картина «Лоскутное одеяло», Зорикто Доржиев. На столе и рабочей столешнице — блюда, haj.x.gan studio
Зона столовой. Обеденный стол, Gubi. Стулья, Bonaldo. Тумбы, Cattelan Italia. Люстра, Cameron Design. Шторы, компания «Форма Т». На столе — вазы, автор Любовь Белая
В планировочном решении автор проекта придерживалась ставшей уже классической схемы разделения пространства на общественную и приватную зоны. Гостиную разместили ближе ко входу, спальни, соответственно, — в глубине квартиры. В процессе перепланировки в гостиной возник тёмный аппендикс. Дизайнер предложила поставить здесь зеркальную стену и организовать зимний сад, на что хозяева с удовольствием согласились. «Проектом мы предусмотрели и тренажёрный зал (с большим зеркалом и балетным станком), и зимний сад, и комфортные рабочие места — заказчики видели свою городскую квартиру максимально комфортной, как в загородном доме. Но на тот момент мы ничего не знали про пандемию: проектирование объекта закончили до неё, а начало стройки пришлось как раз на длинный прошлогодний локдаун. Это было пожеланием владельцев, но впоследствии оказалось очень правильным решением: в условиях нестабильной ситуации у хозяев есть все условия, чтобы пережить домашнюю изоляцию безо всяких проблем», — замечает Оксана.
Отклик у заказчиков нашла и идея стеклянных перегородок, которые дизайнер применила в зонировании вытянутого и протяжённого пространства, отделив от гостиной кухню и кабинет–библиотеку. Они визуально облегчили объём, добавили ему света и воздуха. На стеклянные стены нанесли рисунок в виде тонких полос, чтобы передвигаться в темноте было более безопасно. В функциональном плане организация пространства удовлетворяет все пожелания хозяев: помимо основных помещений автор проекта предусмотрела и две гардеробные, и две ванные комнаты, и хозблок. «Мы участвовали в тендере на проектирование этой квартиры, и наш вариант был выбран безоговорочно, — вспоминает Оксана. — Заказчикам очень понравилась логика нашего варианта планировки, а также то, что мы предложили сделать гостевой санузел у входа, да ещё и с окном. Остальные участники тендера почему–то проигнорировали такое очевидное решение. В целом, общение проходило позитивно, практически все предложенные нами идеи были воплощены в жизнь».
Женская спальня. Кровать, Minotti. Прикроватная тумба, Alivar. Кресло, B&B Italia. Картина, Зорикто Доржиев. Подвесная тумба, стол выполнены на заказ компанией «АФ Ника». Текстиль, компания «Форма Т». Ковёр, DOVLET HOUSE. Постельное бельё, покрывало, ATELIERTATI
Общий вид ванной комнаты хозяев. Пол отделан мрамором Calacatta Borghini. Работы по камню, компания Stoneroom. Тумба выполнена из искусственного камня компанией «АФ Ника»
Фрагмент ванной комнаты. Главный акцент комнаты — панно на стене из мрамора Calacatta Macchia Vecchia. «Поиск подходящего камня занял много времени, но в результате был найден тот самый необыкновенной красоты слэб», — замечает Оксана Сальберг–Вачнадзе. Ванна, столик, Antonio Lupi. Смеситель, Fantini
Мужскую спальню по просьбе главы семьи разместили в помещении с самым эффектным видом — на Москва– реку и памятник Петру I и увеличили глубину подоконника, чтобы на нём можно было сидеть. Стену украшает светильник–круг из белого стекла, изготовленный на заказ компаний «Борус». Кровать, Alivar. Прикроватная тумба, Meridiani. Кресло, B&B Italia. Мебельная композиция, компания «АФ Ника». Ковёр, Dovlet house. Постельное бельё, покрывало, подушки на окне, ATELIERTATI. На прикроватном столике — ваза haj.x.gan studio
Фрагмент прихожей. Консоль, Meridiani. Пуф, Cattelan Italia. Зеркало, Lee Broom. Скульптура, Yellow Line. Мелочница, Moustache, салон GK Concept
Спальня сына выкрашена в глубокий оливковый цвет. Стена за изголовьем кровати оформлена панно из замшевых панелей, изготовленных по эскизам автора проекта. Кровать, Bonaldo. Прикроватные тумбы, Misura Emme. Письменный стол, компания «Стиль и дизайн»
В спальне дочери доминирует сложная серо–розовая, чуть пудровая гамма. Кровать, прикроватные тумбы, Bonaldo. Письменный стол выполнен на заказ компанией «Стиль и дизайн». Банкетка, Meridiani
Детский санузел. Стены отделаны керамической плиткой 41zero42 из коллекции Pack. Пуф, компания «Форма Т». Мебель для ванной, Duravit
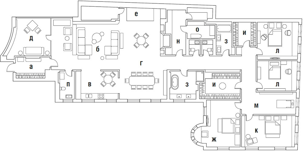
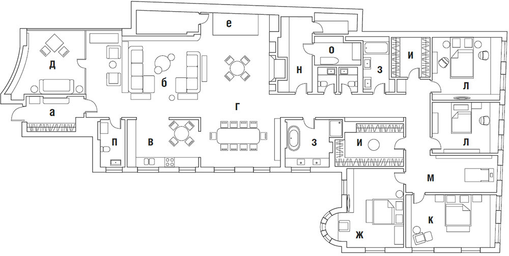
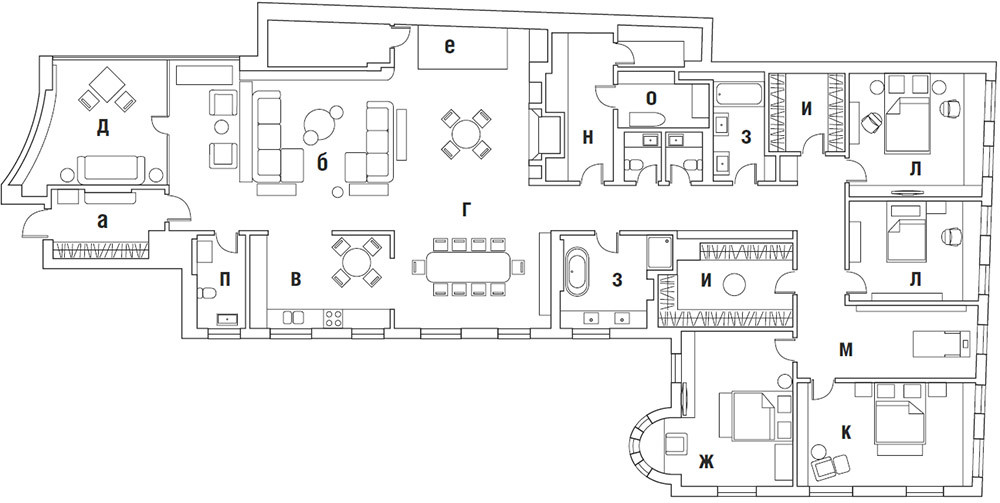
Общая площадь 350 м2
а) прихожая б) гостиная с каминной зоной в) кухня г) столовая д) библиотека е) зимний сад ж) женская спальня з) ванные комнаты и) гардеробные к) мужская спальня л) детские комнаты м) тренажёрный зал н) хозблок о) постирочная п) гостевой санузел
Автор проекта дизайнер Оксана Сальберг–Вачнадзе Дизайнеры Ольга Чесалина, Мария Сошкина (студия o2designmoscow)
Больше фотографий — в группе SALON–interior на сайте «ВКонтакте»
Фото: Сергей Красюк; стилисты: Даша Ишкараева, Катя Яковлева (@yes_we_may)
Авторизуйтесь, чтобы продолжить чтение. Это быстро и бесплатно.