Архитектор Елена Андреева и ее партнеры с нуля построили загородный дом мечты со спокойными, гармоничными интерьерами для двух поколений одной семьи
Текст: Оксана Бояринцева Фото: Евгений Кулибаба Стилист: Лиза Эшва
Столовая зона. Панорамные окна впускают в дом природную и естественную среду обитания, которую так ценят заказчики. На полу использован керамогранит квадратного формата. Ковер из шелка и шерсти, «Культура ковров». Обеденный стол, стулья, консоль с картиной, Maxalto. Текстиль, ателье Ldart
Заказчики — семья из родителей и детей, которые часто приезжают в гости, — хотели создать и обустроить основательный дом среди вековых сосен в максимально короткие сроки. Выбранное ими место — участок величиной в 25 соток с видом на живописный хвойный лес — обладает особенной стародачной атмосферой. «Соседство старых деревянных красивых дач 50‑х годов задавало тон и настрой», — говорит автор проекта. На концепцию проекта оказало решающее влияние присутствие старых поселковых коммуникаций и изобилие величественных сосен. Идея двух разновеликих объемов — основного дома с симметричной скатной кровлей и соединенного с ним крытой террасой гостевого дома — отлично ложилась на представления хозяев об идеальном доме. Строения выполнены в духе традиционной архитектуры, с фасадами из надежного долговечного клинкерного кирпича графитового цвета и лиственницы, тонированной в черный оттенок. И сосны, и само расположение дома дают полную приватность и позволяют быть единственными наблюдателями жизни самих хозяев. У заказчика было абсолютное понимание функционала дома, так как он уже имел большой опыт строительства. А еще он спокойно соглашался на компромиссы и эксперименты, что бесценно в работе тандема архитектор-заказчик. Сразу выяснилось, что необходима большая общая зона, совмещенный с кинотеатром кабинет, а в каждой спальне — свои гардеробная и ванная комнаты, и их количество.
Место для сада и просторной SPA-зоны с бассейном образовалось само. Но сердце дома — это терраса с камином, которая эксплуатируется круглогодично в любую погоду и дарит самые душевные моменты в общении.
Автор проекта архитектор Елена Андреева
Акцентная и зрелищная детать в интерьере — гипсовое панно BOTANICAL PANNO by Masha Dolgova с эффектной вертикальной подсветкой. Эта работа длиной 4 метра с оттисками живых растений расположилась в гостиной напротив панорамного окна, за которым живут настоящие травы
Хозяину нравятся темные тона — отсюда черные акценты в интерьере. Голова Будды, столик-барабан и черный столик из вулканической лавы в гостиной на первом этаже — предметы из Индии, которые перекликаются со слоном на картине Алексея Теренина. Диван, столик-пень, Poliform
Хозяева любят простор, поэтому гостиная, столовая и кухня — это одно большое пространство с разными функциональными зонами. Местом притяжения здесь является камин — любимое место сбора семьи. Ковер из шелка и шерсти, «Культура ковров». Столовая группа, Maxalto. Барные стулья, Lema
Изначально в проекте лестница была развернута на 180 градусов. Но в итоге получилось другое эргономичное оригинальное решение: лестница крепится к несущей стене в четырех местах, через стальной косоур, который держит на себе все ступени. Ограждение — самонесущая конструкция из двухслойной фанеры, окрашенной в черный цвет. Кухня с островом, Ernestomeda. Керамика, Savour Design
Холл второго этажа. Картина — Алексей Теренин
В кабинете хозяина и в кинотеатре стены и потолок окрашены краской иссиня-черного цвета и контрастного белого (из коллекции красок MonoChrome) — дань традиционному желанию сделать интерьер еще более приватным. Диван, кресла, столики, Flexform
В главной спальне гардероб выделен в отдельную зону с помощью светопрозрачной металлической конструкции, которая создает интригу. Эта конструкция разработана специально для этой комнаты и имеет свои необходимые пропорции и цветовые решения. Кровать, банкетка, Meridiani. Прикроватные тумбы, Flou. Консоль — Индия. Ковер, «Культура ковров»
В доме есть несколько уютных гостевых спален. Обои декорируют стены у изголовья кроватей. На полу во всех спальных зонах — традиционный широкополосный дуб рустик. Кровать, Altrenotti. Картина — Алексей Теренин
Также архитектору сразу удалось правильно прочувствовать характер будущего интерьера — лаконичный и строгий, без оглядки на моду и тренды. Это интерьер, который заставляет обратить внимание на суть вещей, а не на их оболочку.
Выбранную философию подчеркивают неброские материалы и простые формы. Подход к работе автора проекта совпал с требованиями заказчика: Елена Андреева всегда уделяет внимание эргономике пространства. «Для меня важно просчитать пути следования человека, свести к минимуму лишние движения, сделать пребывание человека в пространстве комфортным и спокойным», — говорит архитектор. Она еще до конца не знала, как будет выглядеть интерьер, но прекрасно понимала главное: дом создается для человека, а не для соцсетей и придирчивых гостей.
Несмотря на общее ощущение спокойной консервативности, в реализации проекта учтены все необходимые современные технологии. Это безопасность, видеонаблюдение, автономный интернет, дистанционное управление системой «умный дом».
Гостевая спальня. «Пространства со сложным потолоком требуют особого внимания. Чтобы белый потолок неправильной формы не разрушал гармонию комнаты, я часто применяю яркие обои, отвлекающие внимание от неправильной геометрии помещения», — говорит автор проекта. Кровать, Altrenotti. Ковер из шелка и бамбука, «Культура ковров»
В детской спальне есть несколько функциональных зон, в том числе отделенное стеллажом от зоны сна место для письменного стола. Кровать и пуф, Meridiani. Ковер (шелк/бамбук), «Культура ковров» Кожаное кресло, I4 Mariani
Автор проекта решила разместить ванны в санузлах прямо напротив окон, из которых видны сосны: это дает возможность по‑настоящему отдо‑ хнуть и отвлечься от забот. Елена стара‑ лась сократить количе‑ ство холодного камня и разбавить ванные зоны теплыми и уютны‑ ми деталями. Высота плитки ограничивается размером плиты — 1,2 метра. Выше использована обычная интерьерная краска, так как все санузлы в доме имеют окна для проветривания
SPA-зона с бассейном и лаконичной отделкой, где все располагает к отдыху — еще одна возможность провести время в покое и тишине, любуясь природой через большие окна. Вид из окон автор проекта называет самым ценным в этом интерьере
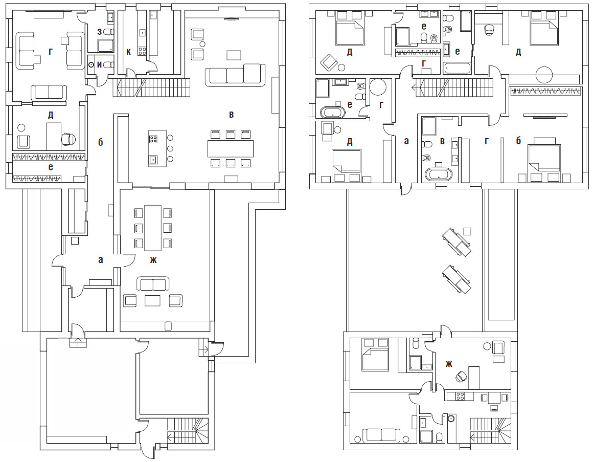
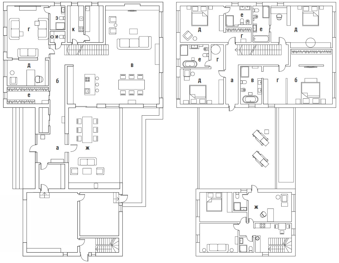
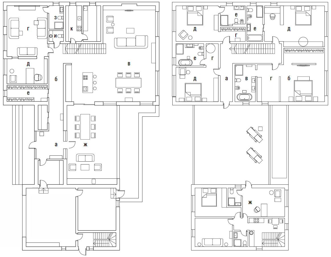
Здание со скатной крышей и фасадами, отделанными клинкерным кирпичом и лиственницей, тонированной в черный, состоит из двух разновеликих объемов — основного дома и гостевого, объединенных между собой крытой террасой, на втором уровне которой — зона для инсолляции
Столовая на открытой террасе оборудована деревянной мебелью, привезенной из Индии. Вазы, Savour Design
Архитектор считает центральным элементом просторную двухуровневую террасу с камином — своеобразный переход от дома к природе и саду. В часть перекрытия террасы встроено световое окно для инсоляции. На участке удалось сохранить максимум деревьев — они растут здесь уже много-много лет и являются хранителями благополучия этого места
Автор проекта сравнивает свою работу с игрой в шахматы: те же обдуманные стратегии, многочисленные комбинации и неожиданные повороты. Самым сложным оказался подбор сочетаний разных оттенков цвета, тем более что из‑за экономической ситуации пришлось на ходу менять уже готовые композиции, искать замену обоям, отделке, керамограниту (к моменту начала закупки выбранных материалов завод остановил производство). Однако для автора это не было критичным: она привыкла работать не с дорогими материалами, которые приходится ждать месяцами и искать в закромах поставщиков. Елена считает, что из простых материалов можно и нужно создавать душевные, человечные интерьеры вне времени, и не боится адаптировать проект под реалии «на ходу». «Мои идеи и решения меняются в процессе работы, они подвижные и гибкие. От этого получаются интерьеры с характером и со своим лицом». Благодаря такому подходу команда, не теряя в качестве строительства, построила готовый дом с отделкой и полной комплектацией в минимальные сроки: год и три месяца. Лучшей похвалой для автора проекта остаются отзывы гостей заказчиков. «Можно я останусь у вас?» — вот так гости дома оценивают работу всей команды.