Всё сбывается
Дизайнеры из бюро TS Design создали лёгкий классический интерьер с модной, современной обстановкой

Свой рассказ об интерьере авторы проекта Тарас Безруков и Стас Самкович начали со слов: «Мечты сбываются». Однажды, будучи по делам в Московском районе Санкт–Петербурга, дизайнеры заехали посмотреть ЖК «Победа, 5», о котором были много наслышаны. Этот комплекс завоевал ряд престижных премий за архитектурный проект и подход к строительству. «Архитектура и внутреннее убранство восхищало своим масштабом, правильными пропорциями и чистотой решений, — вспоминает Тарас. — Помню в разговоре проскочила мысль: как было бы интересно поработать здесь с интерьером. Кто бы мог подумать, что через несколько месяцев к нам обратятся клиенты, купившие квартиру в этом комплексе».
У заказчиков были особые пожелания к стилистике будущего интерьера. Уже обладая недвижимостью, они не хотели повторяться и мечтали о свежем, в меру модном, по-европейски сдержанном пространстве, не тотальную классику, но и не что-то чересчур современное и холодное по ощущениям.





«Заказчики — интеллигентная пара с двумя детьми (старший ребёнок уже живёт отдельно) — нашли нас через социальные медиа, — рассказывает Стас Самкович. — Супруга несколько раз отмечала фото наших проектов, делала закладки, а когда встал вопрос выбора профессионала ребром, то вспомнила про свой «альбом идей» и решила нам написать». После нескольких встреч с показами коллажей и форэскизов, так называемыми «стилистическими примерками», дизайнеры предложили концепт: лёгкий, классический каркас (не перегруженный деталями) и современная начинка. Но начинка не холодная или по-галерейному слишком импозантная, а уютная, без кричащих элементов, чтобы хозяева ощущали себя дома расслабленно и легко. «Проект мы даже в шутку назвали «Лёгкое обаяние буржуазии», — поясняет Тарас Безруков. — Именно легко: легко визуально и легко энергетически. Это желание стало основным направлением в развитии всего интерьера». Мебель на тонких ножках, лепной ажурный карниз, современный, фактически невесомый светильник, глянцевые поверхности и пастельный, растушёванный цвет стен придают гостиной эффект парящего интерьера. В свою очередь, обволакивающую, уютную обстановку в спальне создаёт мебель с плавными, огибающими формами и мягкий, «плюшевый» текстиль. «Тема единого стилистического решения прослеживается во всех помещениях, меняются лишь элементы, цветовые акценты и композиции, — замечает Стас. — Только в кабинете мы немного отступили от общей концепции: выбрали для стен более глубокий цвет. В помещении много естественного света, и довольно насыщенный оттенок не выглядит особо давящим, он придаёт комнате более строгий, мужской характер».
Тарас Безруков: «Самое главное в этом проекте то, что мы сумели отразить в интерьере характер заказчиков. Квартира получилась лёгкая, отчасти модная, не побоюсь этого слова, интеллигентная, в ней есть стиль и чувство меры. Самой большой похвалой для нас стали счастливые глаза владельцев, то, как они радуются своему новому дому, их приятное волнение при первом знакомстве с интерьером и то, с каким трепетом они сейчас подбирают декор и аксессуары»





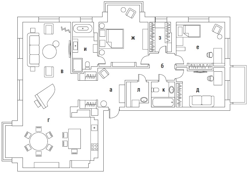
Общая площадь 174 м2

Авторы проекта дизайнеры Тарас Безруков, Стас Самкович (бюро TS Design, г. Москва)
Изготовление встроенной мебели компания «Капитоль»
Поставка текстиля магазины Manders
Поставка плитки компании «Кредит Керамика», Zodiac
