Во всей красе
В основе интерьера этой московской квартиры — модная и универсальная американская классика

Заказчики — молодая семья с двумя детьми школьного возраста. «Работать было одно удовольствие, — вспоминает Мария Бахарева. — Мы встретились, обсудили функционал, бюджет, что нравится в стилистическом плане, а дальше проект шёл как по маслу: мы предлагали, они соглашались, изредка меняя какие-то незначительные нюансы». Особое внимание заказчики уделили внешнему виду детских комнат, в обсуждении непосредственное участие приняли юные члены семьи, высказавшие свои личные пожелания. Так, в спальне старшего сына появились «тайная комната» и элементы стиля лофт, в комнате младшего — плакаты с «Человеком– пауком» и соответствующая тематика.

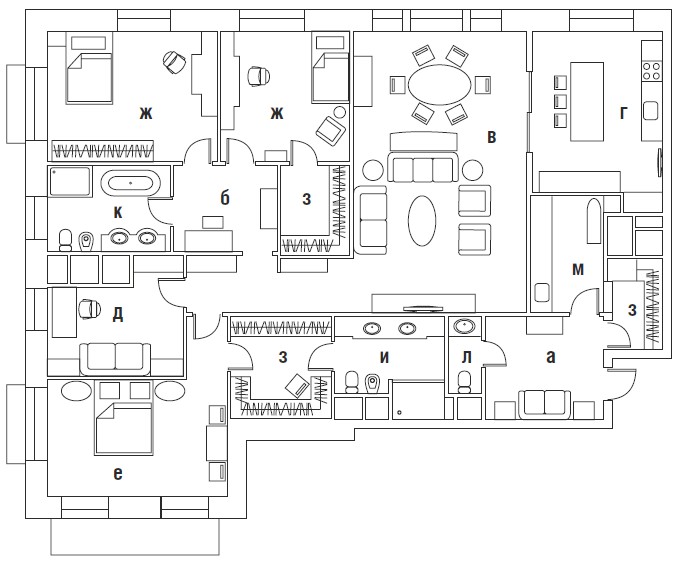
Квартира находится в престижном жилом комплексе в историческом центре Москвы. Архитекторы организовали пространство, исходя из потребностей и образа жизни домочадцев, использовав классическое деление на приватную и общественную зоны. Центральное помещение — просторная гостиная, совмещённая со столовой и кухней, которую при желании можно отделить от общего пространства раздвижными дверями со стеклянными вставками. Из коридора, примыкающего к гостиной, можно попасть в блок с двумя детскими комнатами с собственным