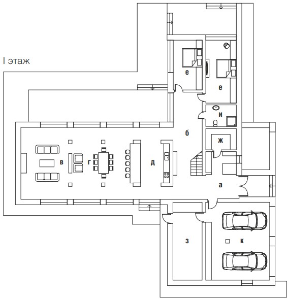
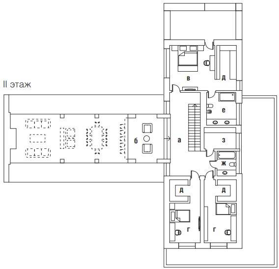
В стиле рок
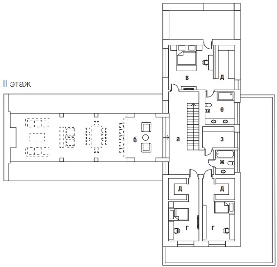
В основу концепции лёг образ старинного каменного амбара, реконструированного под жилой дом

Иван Юнаков: «Этот дом уникален тем, что в нём нет ничего масс–маркетного, фабричного. Начиная от конструктива и заканчивая мебелью — всё ручной работы, а каждое решение продиктовано функцией, нет ничего «притянутого за уши», искусственно–декоративного»



Заказчики решили построить загородный дом, напоминающий им о жизни в Англии. Осуществить их мечту взялись архитекторы Иван Юнаков и Ярослав Катрич из киевского бюро 33BY Architecture. «Мы познакомились с ребятами в фейсбуке (соцсеть признана в РФ экстремистской и запрещена), —рассказывает Иван. — Это молодая семья, супруги часто путешествуют. Долгое время они жили за границей, в доме, который был переделан из старого амбара. Он им очень нравился, нечто подобное они хотели воссоздать на своём участке. В Западной Европе и США амбары, конюшни, заводы и даже церкви — в общем, всё, что только можно, активно реконструируется
