Шале по-русски
Дизайнер Ирина Шевченко придумала для загородного дома яркий, сказочный и собирательный образ, наполненный разнообразными аллюзиями и впечатлениями от русских сказок, альпийского шале и лофта

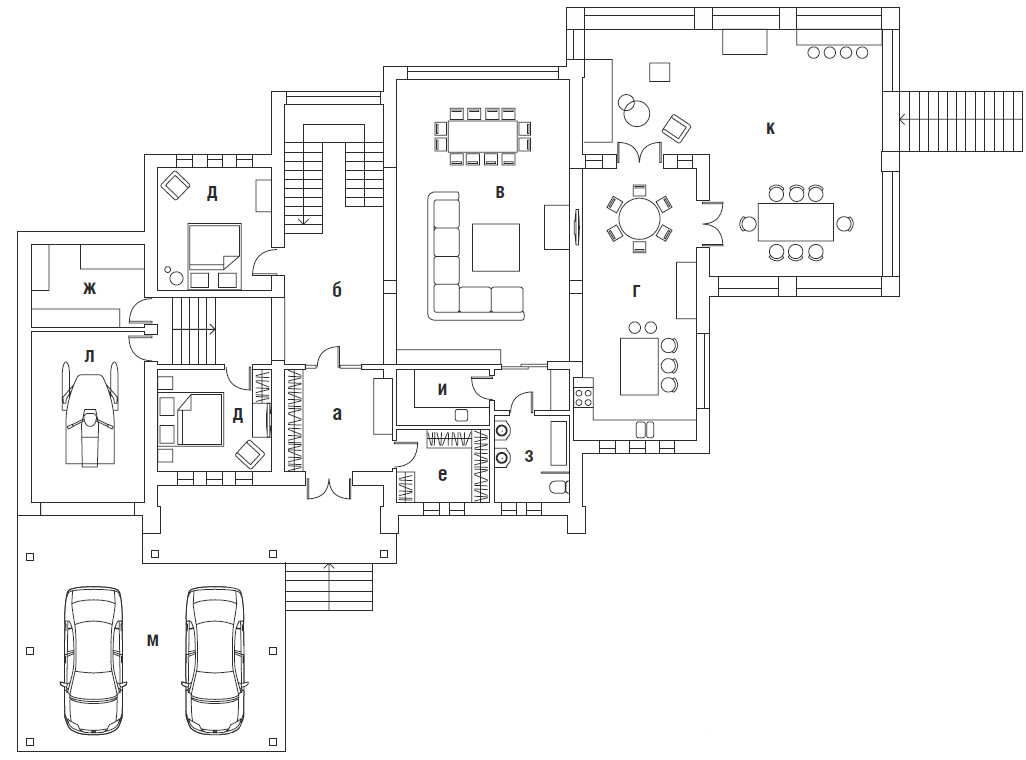
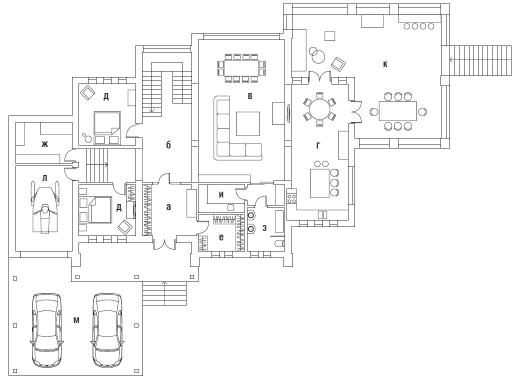
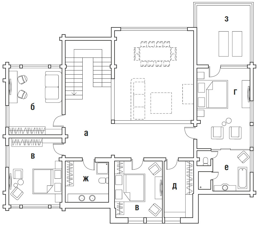
Владельцы, хорошие знакомые дизайнера, пригласили Ирину к работе над проектом на стадии возведения стен второго этажа. Из-за непреодолимых противоречий им пришлось уволить команду архитекторов, начинавших стройку. В наследство досталась коробка с внутренними перегородками и большим количеством окон, не совсем эргономичная планировка и масса инженерных проблем. Пространство расчистили от ненужных, крадущих воздух стен, максимально расширили проёмы. Освоили цокольный этаж. В нём обнаружили несколько замурованных в бетон объёмов, за счёт которых удалось в три раза увеличить площадь спа–зоны. «Строительство дома таких размеров требует очень серьёзных вложений и зачастую затягивается на долгие годы, — говорит Ирина. — Поэтому хозяева приняли решение основную часть бюджета вложить в инженерию, а отделку выполнить в более демократичном ключе. Это на самом деле отлично соотносилось с первоначальной идеей. Заказчики мечтали о загородной резиденции для отдыха и общения с друзьями и не хотели смущать гостей обилием мрамора и латуни. Дом, по их представлениям, должен быть наполнен светом, воздухом и природными, тактильно приятными материалами. Им нужна была абсолютно расслабленная, непринуждённая, сельская атмосфера».
Чтобы стены приобрели нужный оттенок, но выглядели при этом необработанными, их пропитали специальным маслом для соснового бруса









В качестве референсов дизайнер рассматривала заброшенные тосканские фермы, альпийские шале, лофты в стиле бохо… Постепенно возник образ брутальной, нордической виллы, собранной из множества впечатлений и ассоциаций, наподобие яркого лоскутного одеяла. «Это дом настоящих северян. Непреступен снаружи, но внутри чувствуется его очень русский, немного сказочно–наивный, душевный характер, сложившийся на стыке европейской и азиатской культур», — отмечает Ирина. Чтобы интерьер выглядел обжитым, пожившим, применили материалы с историей. Для гостевого санузла собрали панно из старых амбарных досок и штакетника, а рамами для зеркал в зоне столовой служат старые наличники окон. Камин обшили листами чёрного горячекатаного металла, что добавило графичности и брутальности конструкции. Этот простой и такой богатый по цвету материал присутствует также в отделке пола и балок. Заказчики поддержали идею дизайнера инкрустировать пол в гостиной бордюром из старинных чугунных плит, которые в ХIХ веке часто использовали в качестве напольного покрытия на фабриках. Мебель по большей части покупали на распродажах или заказывали у местных мастеров. С точки зрения функциональности пространство спланировано с учётом жизни семьи. «В этом доме шесть спален: две для членов семьи и четыре гостевые, — продолжает рассказ Ирина. — И они никогда не пустуют. Хозяева очень любят и умеют встречать гостей, веселиться в русских традициях. Все помещения активно и ежедневно используются, включая бассейн, тренажёрный зал и хаммам. Жизнь современного успешного человека полна ежедневного стресса и весьма интенсивна. По возвращении домой ему нужно за короткий срок переключиться и успеть восстановить утраченный баланс. Этот интерьер построен таким образом, чтобы дома человек ощущал себя очень далеко от работы. Мы даже часто шутим, что с такой инфраструктурой здесь мог бы расположиться небольшой детокс–отель. Несмотря на всю мультифактурность и обилие разнообразных деталей, интерьер получился цельным и концептуальным. Можно сказать, мы построили шале с очень русским характером, где некоторая внешняя закрытость для посторонних соседствует с абсолютным гостеприимством, щедростью и теплом для тех, кто переступил порог этого дома».










Общая площадь 650 м2


Автор проекта дизайнер Ирина Шевченко
Фото: Антон Лихтарович