С видом на город
В доме с потрясающим видом на Неву, Смольный собор и мост Петра Великого архитектор Ирина Островская создала интерьер в современном стиле с такими же эффектными деталями

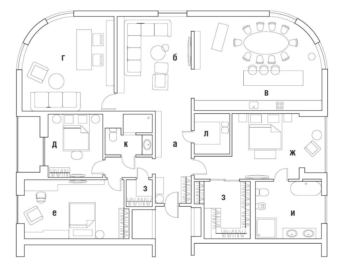
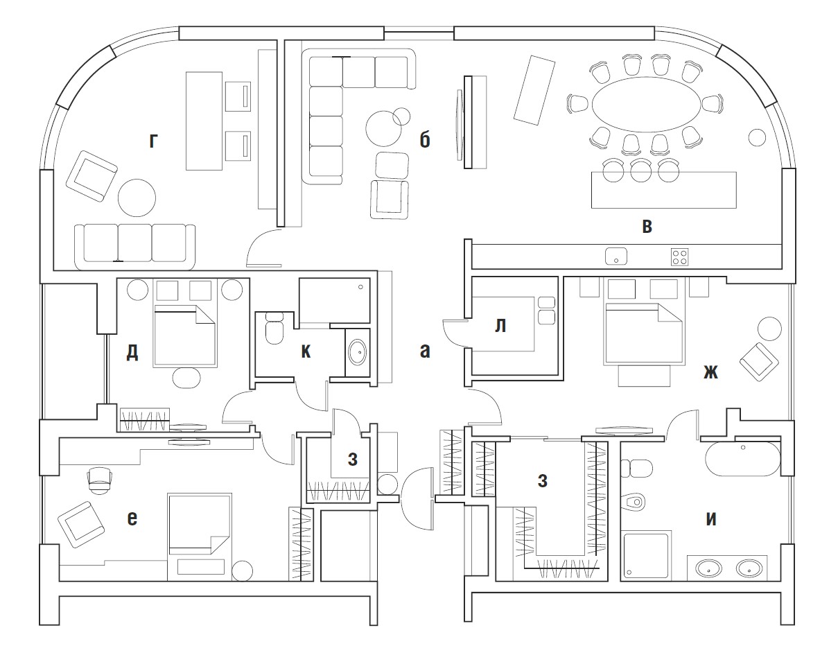
Главное достоинство квартиры в жилом комплексе «5 звёзд» — великолепные виды на центр Северной столицы. В хорошую погоду с 13-го этажа открывается панорама всего города, видны Исаакиевский собор, Адмиралтейство и другие достопримечательности Петербурга. Вторым плюсом стала максимальная приближённость к бизнес-центру, где расположен офис заказчиков. Единственный минус — в доме отсутствовали большие квартиры, поэтому заказчики вынуждены были купить две соседние — трёхкомнатную и однокомнатную — и объединить их. Как рассказывает автор проекта, сделать это было непросто. Пришлось ещё присоединить к жилому пространству часть общего коридора, что требовало согласования с жильцами комплекса. Архитектор начала работать над проектом интерьера ещё во время строительства дома, и к моменту получения ключей всё было готово к реконструкции пространства.





Сердце дома — просторная кухня-столовая. Заказчики любят готовить, часто собираются всей семьёй, принимают гостей, и большая часть их времени проходит именно на кухне. Поэтому кухня — самое просторное помещение. В ней архитектор оборудовала большой остров и биокамин. «Мы расчистили пространство от перегородок и максимально объединили зону прихожей, коридора, гостиной и кухни-столовой, — поясняет Ирина. — Сделали так, чтобы прекрасный вид на Неву и Смольный собор открывался прямо от входа и пространство наполнялось воздухом и светом. Между гостиной и кухней оставалась часть несущей стены. Мы задекорировали её чёрными объёмными панелями, за которыми прячутся шкафы для посуды, и встроили биокамин. Поскольку хозяева иногда работают дома, я спроектировала кабинет с большим столом для двух человек и с библиотекой. В квартире также расположили спальню с гардеробной и ванной комнатой, детскую комнату и гостевую спальню со своим санузлом. Ну и конечно, подсобные помещения — такой важный элемент любого современного интерьера сегодня».
Современный по стилистике интерьер наполнен интересными деталями и предметами мебели. Для отделки Ирина использовала мрамор Silver Braun с эффектным природным рисунком. Им выложен пол на кухне и в прихожей, облицована столешница острова и из него изготовлен кухонный фартук. «Я старалась оформить квартиру в едином духе, не пестрить с отделочными материалами, несмотря на большую площадь — 220 квадратных метров, — комментирует архитектор. — Основа интерьера монохромная, построена на сочетании белого, оттенков серого и чёрного. Цвет появляется лишь в текстиле и мебели: это оттенки жёлтого, фиолетового, розового, цикламена. Важно было учесть просматриваемость помещений, открытость пространства. Поэтому, создавая интерьер, я использовала наиболее гармоничные сочетания цветов. Свою лепту вносит и живопись. У заказчиков прекрасная коллекция графики 1950-х годов — работы О. Верейского и В. Смирнова. Её мы разместили в кабинете. Также мы купили две картины в гостиную от Евгения Зарембы и Александра Герасимова и украсили интерьер фотографиями сына заказчиков, увлекающегося подводной съёмкой».
«С заказчиками мы знакомы очень давно. Первый интерьер квартиры я сделала для них шестнадцать лет назад. Тогда они остановились на классике, современный стиль им казался офисным. Потом была квартира в центре Петербурга для мамы. Это тоже была классика с английской плиткой и лепниной на потолке. Сейчас они решили переехать в квартиру побольше, и приоритеты изменились: заказчики оценили преимущества современной эстетики и пришли к мысли, что новый интерьер должен быть лаконичным и в то же время ярким, интересным, с оригинальными элементами»






Общая площадь: 220 м²

Автор проекта архитектор Ирина Островская, (г. Санкт–Петербург), при участии Анны Мандельштам
Строительство под руководством Олега Васильева (компания «Акант») Поставка мебели компания Hall Oscar
Изготовление встроенной мебели компания «Антик Стиль»
Фото: Иван Сорокин
