Приправить и подать
Дизайнер Светлана Дикушина обожает интерьеры с перчинкой. Вот и собственный дом она наполнила множеством эффектных, неординарных деталей

Автор проекта Светлана Дикушина: «Дизайнер — это как семейный доктор–психолог. К каждому заказчику подход индивидуальный. Мне часто говорят, что, когда я общаюсь с клиентами, меняются даже подача, тональность и речь. Конечно, делается это не намеренно, а на каком-то подсознательном уровне. Залог успешной работы, на мой взгляд, уметь слушать, вникать, наблюдать. Когда я общаюсь с заказчиками, включается какой-то внутренний датчик, и в голове появляются нужные образы и решения. Что касается своего дома, то мне пришлось много разговаривать с самой собой, и, честно, я узнала много нового»

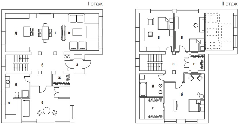
Процесс проектирования проходил в два этапа. Сначала дизайнер отрисовала планы дома, заложив второй свет и колонны (зачем они нужны, расскажем позже), набросала схему дома и отдала специалистам для разработки технической документации. Самую интересную и интригующую часть — дизайн, выбор материалов и предметов — оставила на «десерт». «Размышляя о будущем интерьере, я не могла собрать все мысли в единый концепт, поскольку хотелось попробовать многое, если не всё, но пришлось учесть, что со мной будут жить далеко не дизайнеры, — вспоминает Светлана Дикушина. — В тот момент стиль лофт был на самом пике популярности, мне тоже захотелось поиграть с ним на полную катушку, к тому же немногие заказчики согласились бы на такие смелые идеи. Но лофт — это грубо, скажете вы, а у меня двое маленьких детей. Тогда я решила замешать его с богемным андеграундом, это несколько смягчило брутальность лофтовой эстетики». В небольших