Пальма первенства
Анастасия Перлина и Екатерина Сулейманова создали эффектный и современный интерьер апартаментов в фешенебельном комплексе Atlantis The Royal в Дубае

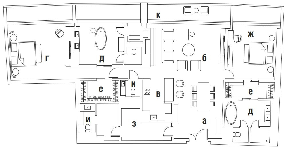
Апартаменты расположены в престижном комплексе Atlantis The Royal на первой линии острова Пальма Джумейра. Заказчики хотели максимально сохранить все выгодные черты проекта застройщика, но сделать пространство более уютным, элегантным, с современным лаконичным дизайном, который не потерял бы актуальности спустя годы. Решить эту задачу они пригласили дуэт архитекторов — Анастасию Перлину из Москвы и Екатерину Сулейманову из Дубая, для которых такой формат работы в тандеме стал дебютным. Авторы перенесли в свой проект все значимые плюсы исходного оформления: комфортную планировку с центральной зоной кухни-столовой и двумя спальнями, панорамный вид из окон, отделку поверхностей керамогранитом с мраморным узором и элементы декора из нержавеющей стали.






На этой базе Анастасия и Екатерина выстроили премиальный, но лаконичный интерьер в стиле комплекса Atlantis The Royal. Отделку стен дополнили натуральный шпон и обои из шелка и льна. Четкие графичные линии пространства смягчили фактурным текстилем и разнообразили предметами современного искусства — абстрактной живописью и предметами декора от локальных дубайских мастеров. Статусный и премиальный характер интерьера подчеркнули выразительными предметами мебели и светильниками. В центральной зоне кухни-гостиной появились кресла POLIFORM с обивкой из натуральной кожи, а также стулья POLTRONA FRAU в охристой цветовой гамме. Потолок украсила футуристическая люстра ARTEMIDE, каплевидные очертания которой перекликаются со знаменитой скульптурой DROPLETS в лобби отеля Atlantis The Royal. В свою очередь металлический блеск светильника поддерживает фактуру нержавеющей стали в наличниках и плинтусах. Мягкие, органические формы предметов мебели гармонируют со сдержанной и естественной колористикой интерьера, которая напоминает об окружающей мегаполис пустыне. “В Дубае сейчас главенствует тренд на сдержанную и лаконичную цветовую гамму, которая выгодно контрастирует с холодными оттенками моря за окном. В нашем случае из гостиной открывается яркий, насыщенный красками панорамный вид, который мы выгодно подчеркнули с помощью, выстроенной на нюансах цветовой гаммы”, — говорят авторы проекта. Лейтмотивом и приватной, и общественной зоны стало натуральное дерево. Стены прихожей декорировали панелями из шпона, которые будто перетекают в оформление фасадов кухни. В спальнях к отделке стен обоями изо льна и шелка также добавляется натуральное дерево как в декоре стен, так и в созданных по индивидуальному проекту предметах мебели — гардеробных, стеллажах и туалетных столиках. Такое сочетание природной гаммы, материалов и актуального дизайна превращает исходное пространство в остромодный, но уютный и выразительный интерьер.





Общая площадь 189 м2

Авторы проекта — ведущий архитектор проекта Анастасия Перлина, дизайнер Екатерина Сулейманова