Логика контраста, 199 м2
Проект дизайнера Алексии Братушковой в центре Москвы выстроен на диалоге разных стилей — от авангарда до ар-деко
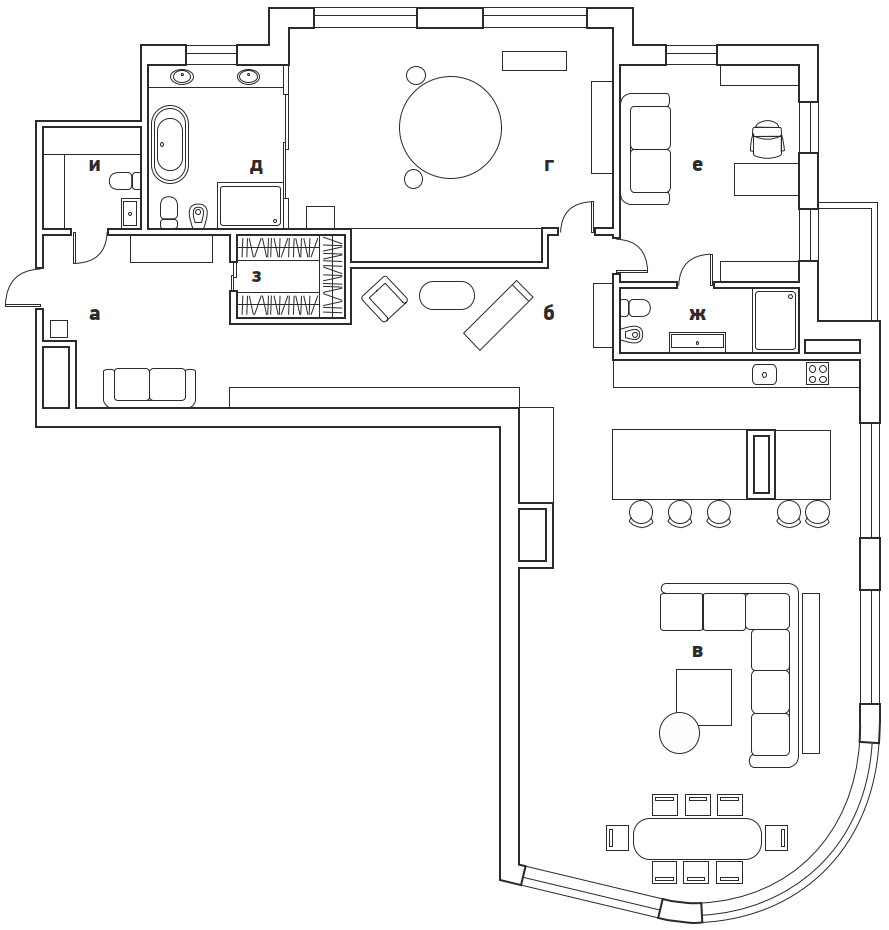
Квартира расположена в клубном доме премиум-класса, в самом сердце столицы, на Патриарших прудах. Заказчики — прогрессивная пара с космополитичными взглядами на дизайн, поэтому команде бюро AlexaBrattdesign во главе с Алексией Братушковой предстояло органично соединить несколько стилевых направлений. Отправной точкой проекта стал авангард — его черты считываются в архитектуре дома. «Для меня важно подчеркнуть связь между интерьером и экстерьером, — говорит Алексия Братушкова. — Так, в этом проекте фасад дома облицован мраморированным известняком молочного цвета — тот же известняк мы добавили в композицию из геометричных элементов в зоне гостиной. А оттенки зеленого в кабинете и санузлах перекликаются с цветом французских балкончиков на фасаде дома». Изначальная планировка квартиры отвечала всем пожеланиям заказчиков. Просторный холл плавно перетекает в общее пространство гостиной, столовой и кухни. В нем же обустроили уютную зону библиотеки. В приватном блоке — хозяйская спальня со своим санузлом и кабинет, который может в будущем послужить и гостевой, и детской. В основу интерьерной концепции легло творчество нидерландского художника-графика Маурица Корнелиса Эшера. Эксперименты с формой, перспективой и логикой пространства в его работах на стыке сюрреализма и поп-арта отражают характер проекта — многослойный, динамичный, построенный на контрастах. К гравюрам Эшера отсылает геометричное панно из нескольких сортов мрамора в холле, его же литографии украшают стены кабинета.











Заказчики отдают предпочтение натуральным материалам, поэтому весь интерьер построен на сочетании камня разных сортов, дерева и текстиля. Стилевые решения тоже сосуществуют в полной гармонии: строгая геометрия авангарда, скругленные формы ар-деко, живопись в стиле супрематизм… Такой подход вносит в интерьер жизнь и динамику, а спокойная цветовая палитра с ненавязчивыми акцентами уравновешивает этот эклектичный микс.
Гостиная — сердце всей квартиры. Благодаря панорамным окнам по всему периметру здесь много естественного света, а нежная молочно-белая гамма поддерживает эффект легкости и воздушности. Пространство удачно зонирует сама форма помещения — в центре скругленного эркера разместили обеденную зону с овальным столом, где хозяева могут собираться вместе с семьей и гостями. С другой стороны — небольшой остров отделяет зону кухни. Ритм всей общей зоне задает акцентная ТВ-стена из травертина с геометричным рисунком.
Эксперименты с зонированием продолжаются и в приватном блоке. В самом центре спальни — эффектная круглая кровать от Ivano Redaelli. Она визуально разделяет пространство и задает ритм другим элементам мебели — мотив круга повторяется и в форме светильников, и в авангардном рисунке комода. «Создавая интерьеры, я стараюсь опираться не на тренды, а на характер и пожелания заказчиков, их личные истории. В этом проекте мне удалось воплотить идею смешения стилей, но спокойного и гармоничного. Так хозяева квартиры смогут легко добавлять в интерьер детали, наполнять свой дом новыми смыслами, при этом общая концепция не нарушится», — заключает Алексия.
Общая площадь 199 м2
Автор проекта: дизайнер-декоратор Алексия Братушкова, дизайн-бюро AlexaBrattdesign (www.alexabratt.com)
Фото: Иван Умрихин. Дизайнер по текстилю Елена Некрасова. Флорист Екатерина Ванюшина.
