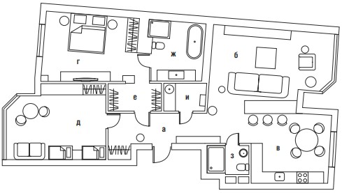
Функция vs декор
Алексей Николашин приверженец современного направления в дизайне. Новая работа архитектора — интерьер в стиле софт–минимализм

Автор проекта Алексей Николашин: «Работа над проектом шла очень легко. Заказчики обратились к нам: они видели многие наши работы и сразу обозначили, что хотят интерьер в современном стиле. Так что направление, куда двигаться, было понятно с самого начала. Буквально за пару встреч мы выяснили все нюансы, обсудили технические детали: сколько человек обычно сидит за столом, какие материалы им нравятся и т.п. Концепция родилась молниеносно, она очень понравилась хозяевам, и мы приступили к реализации проекта»


Свой рассказ об интерьере этой московской квартиры архитектор Алексей Николашин начал с того, что современный стиль, аскетичный по своей природе, постепенно эволюционирует в сторону чего-то более мягкого, тёплого и уютного. Влияние классики не столь очевидно и явно, лепнину, золото и завитушки вы, конечно, не увидите. Речь идёт об атмосфере, ощущениях — всё строится на подсознательном уровне. Современный дизайн переосмысливает классическое наследие, приспосабливая его под свои нужды. К примеру, в этом проекте архитектор использовал некоторые традиционные приёмы, чтобы усложнить образ и создать уютную атмосферу. Стену за телевизором в гостиной отделал деревянными панелями, но они не такие
