Душа дома
Деревянный дом в Новоглаголеве — новая работа архитекторов Сергея Барабадзе и Гули Ахметшиной для бизнес–леди из Москвы

Гуля Ахметшина: «Интерьер деревянного дома решать не так просто, как кажется. Загородный дом всегда пытается «тянуться» к идеалу виллы, особняка, замка… Тогда как у деревянного дома — деревенское происхождение, хотим мы этого или не хотим. Особенно в России это так. Изба, терем, дача… Вот история и география деревянного дома. Но дача — это не дом для постоянного проживания, это всего лишь summer house, сезонная тема. И у дачи свои жанровые законы. Нам надо было создать именно дачу — хозяйка приезжает сюда только на выходные»




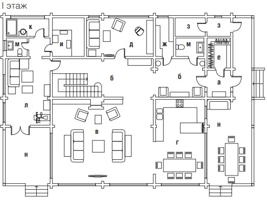
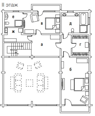
Загородый дом включает в себя много смыслов. Это целая идеология, уходящая корнями в далёкое прошлое. Характерно, что только убранист способен извлечь из жизни на природе все струны удо вольствия. Именно в противопо ставлении «город —деревня» ещё с античных времён формировалось понимание виллы, усадьбы, поме стья как целого мира, связанного с наслажде нием природой, с высокими занятиями ли тературой, философией и живописью, с праздностью во имя роскоши общения и, са мое главное, сладкого ничегонеделания — dolce far niente. Поэтому архитекторы взяли под контроль абсолютно все процессы — от проектирования дома до вмешательства в ландшафтный план. Один из готовых проек тов деревянного дома, который выбрала за казчица, дорабатывали и развивали: увеличи вали количество окон и расширяли оконные проёмы, пристраивали террасы, дом растяги вали и продлевали, делали более светлым и просторным. Перед домом строго по оси вы рыли бассейн. Водоём — знаковый для усадьбы момент, важная составляющая загородной постройки. Фасад отражается в водной глади, затем дробится и исчезает при порыве ветра, когда набегает водная рябь, — все эти эффекты мы найдём в любом памятнике античной, а затем ренессансной архитектуры. Всё это на следие переехало и в новое время, и сюда, к нам, в XXI уже теперь век. Но встал
