Домашняя арт–галерея
Новый проект студии «Детали» — колоритный современный интерьер с графикой в стиле поп–арт, яркими акцентами и мебелью — иконами дизайна

Каждая работа калининградской студии «Детали» и её руководителя Марины Кутузовой — словно маленькое произведение искусства: яркое, харизматичное, самобытное. Вот и на этот раз заказчики — молодая семья с ребёнком — обратились к Марине за эффектным дизайном, в котором отразилась бы их любовь и к современному искусству, и к сочным цветам, и к гиперфункциональным решениям: в доме подрастает малыш и важно было использование максимально практичных и износостойких материалов.

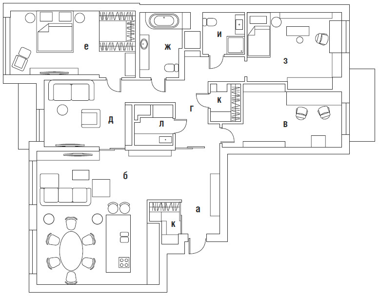
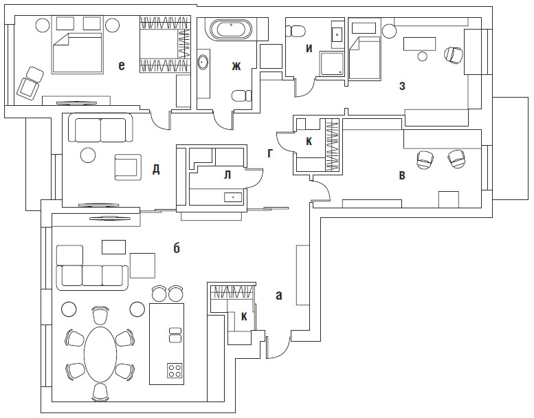
Планировка чёткая и ясная. Пространство состоит из приватного блока со спальнями и ванными комнатами и общественного с кухней–столовой и гостиной зоной. Между ними — стеклянные перегородки, которые позволяют полностью закрыть или открыть приватную часть, если это необходимо. Продуманно и рационально пространство обустроено и в плане быта: в квартире предусмотрено большое количество систем хранения, от отдельных гардеробных комнат, встроенных шкафов, стеллажей и полок до хозпомещения — постирочной.
