Архитектор Юлия Стоянова оформила для своих заказчиков дом в живописном месте на западе Москвы
Текст: Юлия Сахарова
История этого дома начиналась так: заказчики — супружеская пара с двумя взрослыми детьми — купили трехэтажный загородный дом и пригласили Юлию Стоянову его доработать. «К нам все чаще стали обращаться клиенты, для которых важно не только то, насколько дом функционален, насколько он закрывает бытовые потребности (хотя и это тоже важно), и не только то, насколько он модный, — рассказывает Юлия Стоянова. — Люди хотят, чтобы дом отражал их внутренний мир, чтобы он напитывал их энергией, вдохновлял и радовал. А это всегда очень индивидуальная история, которую очень важно уметь слышать дизайнеру. Так, создавая этот интерьер, мы опирались на пожелание наших заказчиков жить в изысканном и комфортном пространстве, которое вдохновляет». Дом частично реконструировали, заменили все инженерные системы. Перепланировку провели с учетом потребностей большой семьи: сделали пристройку, где сейчас находится столовая, а также полностью изменили геометрию мансардного этажа.
Функционально дом разделен на несколько зон. Первый этаж — место, где собирается вся семья, куда приходят гости. Это кухня, столовая и гостиная с камином. Второй этаж — приватный. Там расположены блок хозяев (спальня со своими гардеробной и санузлом), кабинет главы семьи, а также спальни сына и дочери. Мансардный этаж задуман как территория детей заказчиков и их друзей: «дом в доме» со своими мини-кухней, гардеробной, санузлом, гостиной, спальней и тренажерным залом. Интерьеры первого и второго этажа получились легкими и воздушными, при этом стилистически многослойными: автор проекта миксовала в разных пропорциях ар-деко, классицизм, современный стиль, а кое-где прибавляла богемного французского флера. Что касается мансардного этажа, его интерьер напоминает об альпийском шале — некоторыми деталями, тонко, ненавязчиво. Например, в гостиной это панно с силуэтом горного массива, поросшего лесом, а в спальне — изголовье кровати, сложенное из деревянных фрагментов. Человеку с воображением абрис изголовья напомнит линию горных хребтов.
Автор проекта архитектор Юлия Стоянова, бюро STOArchitects
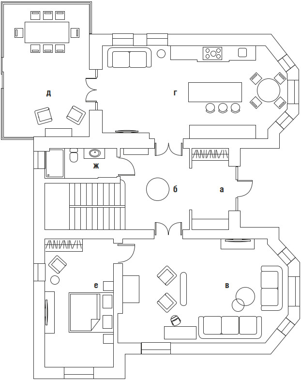
Вид на парадный холл от кухни. За дверями напротив — гостиная. Холл и прихожая нанизаны на единую ось, а кухня и гости- ная — на другую. Красивое решение: на пересечении осей, в центре первого эта- жа, поставили круглый стол с декоративной композицией. Двери, эксклюзивное ме- бельное производство INTERIO GRAND
Гостиная поделена на две части: каминную (на странице слева) и ТВ-зону (на этой странице). В ТВ- зоне — кофейные столики со столеш- ницами из мрамора и диваны по дизайну Giuseppe Iasparra (Longhi). Над дива- ном — картина «Ар- хитектурный мотив» Василия Власова, слева от дверного проема — работа «Белое-33» Виктора Пономаренко (обе картины — галерея SMART). Совре- менное искусство эффектно контра- стирует в интерьере с лепными молдинга- ми и величественны- ми порталами в духе неоклассики. Пол отделан мрамо- ром, а это по ощуще- нию прохладный ма- териал. «Согревают» интерьер гостиной бархатные обивки диванов и ковер из шерсти и шелка. На полу в ТВ-зоне — ковер Art de Vivre by DETALI по дизайну Ирины Татарниковой: в геометрический узор вплетены буквы русского алфавита
Основ- ная столовая залита естественным светом благодаря сплошному остеклению. Чтобы смягчить свет, стены и потолок задрапиро- вали белой тканью. Ничего лишнего: толь- ко обеденный стол, стулья и лаконичная люстра в духе ар-деко
Кухня. Фартук из темного мрамора под- черкивает изящество светлой неокласси- ческой мебели. Два фронта основных шкафов расположены друг напротив друга, между ними — остров. Здесь есть неболь- шой обеденный стол, но основная обеден- ная зона находится в смежном с кухней остекленном помеще- нии. Кухня выполнена на заказ эксклюзив- ным мебельным про- изводством INTERIO GRAND
Спальня хозяев. Здесь центральным элементом компози- ции служит кровать (Bizzotto Italia) с мягким «обнима- ющим» изголовьем. Геометрия текстиль- ных панелей на стене за изголовьем также подчеркнуто мягкая: главный мотив — арка. В эркерной части спальни устро- или уютный уголок для отдыха — кресла (DV Home Collection) с кофейным столиком
Обрамление камина, низкие шкафы, стено- вые панно и гипсовый барельеф в главной спальне увязаны в единую композицию (она выполнена по эскизам автора про- екта). Текстиль оттен- ка ночного неба — шторы, покрывала, подушки — повторяет цветовую тему мягкой стеновой панели у изголовья кровати. Постельное белье, ATELIERTATI
Ванная комната при спальне хозяев де- корирована мрамо- ром с красивейшим природным рисунком цвета кофе со сливка- ми. Мраморный бортик ванны и мраморные торцы стеллажа — смотрятся просто шикарно и много говорят о внимании автора проекта и хозя- ев к деталям
Спальня сына оформ- лена по-мужски сдер- жанно и даже строго, в бежево-кофейной гамме. При этой комнате, а также при спальне хозяев и на мансардном этаже есть гардеробные. В спальне дочери, в гостевых комнатах, а также в прихожей оборудованы встро- енные шкафы
Гостевая спальня в мансардном эта- же — пример того, как можно поработать с ломаной конфи- гурацией потолка чисто декоративными средствами. В данном случае получилось отвлечь внимание от ломаных линий благодаря интересно- му панно из деревян- ных панелей
Кабинетная зона в гостевой спальне, кажется, вырастает из стены — настолько гармонично смотрятся вместе стол и стеллаж. Они, как и многое в этом доме, сделаны по авторским эскизам Юлии Стоя- новой. Шпон дерева в тон паркету создает спокойную, умиротво- ряющую атмосферу
Гостевой санузел на втором этаже впечатляет мрамор- ной отделкой стен и пола: это крупно- форматные панели, уложенные таким об- разом, что рисунок по характеру получился очень энергичным, текучим, бурля- щим. Его несколько «успокаивают» гладкие монохромные поверхности шкафа и лепной декор в виде полосок в верхней части стены
«Важным критерием в создании изысканного по характеру интерьера было использование натуральных материалов — дерева, латуни, мрамора, — отмечает автор проекта. — Так, в центре композиции гостиной — большой камин, облицованный мрамором Arabescato Orobico, который мы выбирали вместе с заказчиками: он превосходно справился с ролью доминанты, не перегрузив при этом легкий воздушный интерьер».
Цветовая гамма общих зон — благородное сочетание бежево-сливочных оттенков с черными и темно-коричневыми акцентами. В главной спальне — серо-бежевые стены и мебель, а в качестве акцента использовали глубокий синий цвет летнего ночного неба (таково было пожелание хозяев). Его мы видим на мягком панно за изголовьем кровати, на шторах и на панно по сторонам камина. По авторским эскизам изготовили двери, порталы, встроенную мебель. Например, для главной спальни разработали симметричную композицию с комодами и камином. Пришлось задействовать несколько подрядчиков одновременно: столярную компанию, поставщика мрамора для камина, мастеров по монтажу гипса и паннофрески. Зато композиция получилось гармоничной и эффектной. И главный итог: интерьер вдохновляет.
Автор проекта дизайнер, архитектор Юлия Стоянова (бюро STOArchitects). Изготовление кухни, порталов и дверей на 1-м этаже эксклюзивное мебельное производство INTERIO GRAND. Поставка картин галерея SMART Gallery. Поставка постельного белья ATELIERTATI. Фото: Чекалов Михаил. Стилист: Катерина Наумова
Авторизуйтесь, чтобы продолжить чтение. Это быстро и бесплатно.