Для двоих
Специалисты студии Ego House создали идеальную жилую среду для жизни в городе — универсальное, трансформируемое пространство в современном стиле

Хозяева квартиры — молодая пара — не имели конкретных пожеланий, кроме присущих многим заказчикам: уютная спальня, две удобные ванные комнаты, большое количество мест для хранения как залог чистоты в доме. На дизайн–концепцию и общее решение в большей степени повлияли исходные данные: у квартиры в новом жилом комплексе Харькова площадью сто сорок шесть квадратных метров выгодное расположение — близко к центру города, далеко от магистралей. Из окон, выходящих на юго–запад, открывается вид на парк, колесо обозрения и ипподром. Вместе с красивой панорамой они создают прекрасное естественное освещение. Как замечает ведущий архитектор проекта Максим Муратов, такое месторасположение даёт возможность абстрагироваться от городского темпа жизни, не теряя при этом связь с самим городом. Как следствие — мягкий современный интерьер с элементами классики, другими словами — уютный дом для современных горожан, всегда актуальный, всегда вне времени.













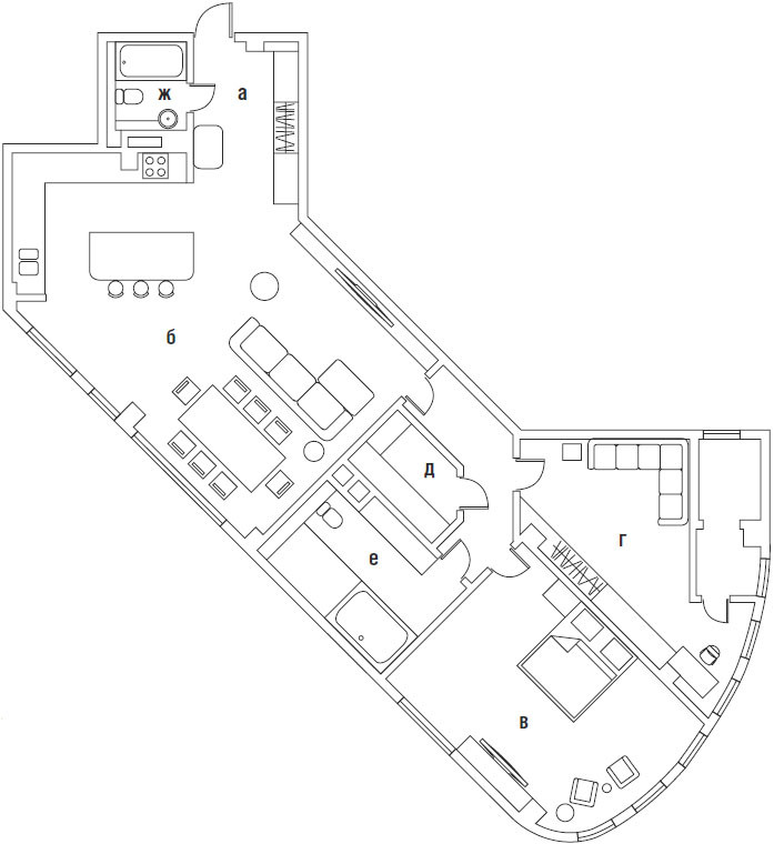
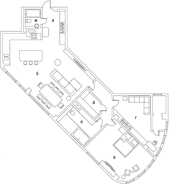
Для комфортной жизни семейной пары пространство разделили на два блока: зону дневного пребывания и ночного. Общественная часть квартиры представляет собой просторную студию–гостиную с кухней и столовой. Приватная часть состоит из спальни, ванной комнаты, гардеробной и гостевой спальни, которая впоследствии может трансформироваться в детскую. Их разделяет короткий тёмный коридор вроде буферной зоны между двумя светлыми объёмами. Конструктивная особенность квартиры — несущая колонна между гостиной, кухней и прихожей, визуально разрывающая пространство. Чтобы нивелировать этот недостаток, колонну декорировали тонкими металлическими стержнями по типу каннелюров, которые сделали квадратное сечение круглым, а благодаря мелкому членению конструкция выглядит легче, чем есть на самом деле. Мотив стержней прослеживается в зоне кухни, где аналогичным образом оформлено основание острова, и на стыке гостиной и прихожей, только здесь белые стержни заменены на чёрные (в цвет фасадов шкафов), и создают они уже не объём, а пустоты, эффектно подсвеченные изнутри. Вертикальный ритм вообще основная тема в интерьере. Одна из стен гостиной украшена тонким лепным декором в виде больших рам, который маскирует дверь в коридор, ведущий в приватную часть. Мало того что двери доходят до потолка, тонкие рамки появляются и в спальне в виде элементов шпонированной панели.
Днём комнаты ярко освещены, а вечером наполнены лучами заката — при таких условиях особую роль в интерьере играет текстиль. Окна обрамляют тёмные и светлые шторы. При стилистической сдержанности и отсутствии ярких акцентов с их помощью можно легко разыграть различные сценарии освещения как при дневном свете, так и при искусственном, создать прихотливую визуальную игру теней и бликов в складках из светлых и тёмных тканей.
Общая площадь 146 м2

Авторы проекта ведущий архитектор Максим Муратов, дизайнеры Алеся Манько, Арина Пинчук (архитектурная студия Ego House, Украина)
