Чувство прекрасного
Атмосфера сдержанной роскоши, изысканная цветовая гамма и эксклюзивные материалы — в новом проекте Анны Сахаровой и Алисы Лобановой

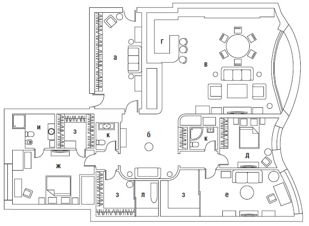
В дизайн–бюро Bellardo обратилась молодая пара, бизнесмен и бизнес–леди, с пожеланием разработать интерьер их новой квартиры, расположенной в столичном районе Хамовники. «Хозяева — эстеты, люди с богатым воображением и хорошим вкусом, — рассказывает Анна Сахарова. — Им хотелось, чтобы мы создали в квартире атмосферу изысканной роскоши, а интерьер отвечал самым высоким требованиям как с технической, так и с эстетической точки зрения». Хозяева часто устраивают у себя дома приёмы для узкого круга друзей и партнёров, и барная стойка из белого мрамора — элемент организации праздничных мероприятий — стала центром парадного пространства гостиной, задала декоративные мотивы для оформления всего интерьера. «Архитектурная форма здания в некоторой степени продиктовала планировочное решение и нашла отражение в дизайне пространства, — поясняет Алиса Лобанова. — Полу круглые стены фасада мы поддержали в таких же по форме мебельных элементах, в том числе в барной стойке с радиусным изгибом, изготовленной из цельного куска мрамора».




В отделке особый акцент сделан на эксклюзивные, роскошные материалы и элементы декора: редкие сорта мрамора и дерева, хрусталь, тонкую работу с замшей, шпонами и лаками. В интерьере много аксессуаров из частной коллекции заказчиков, а также предметов таких брендов, как LALIQUE, THG, JEAN LOUIS DENIOT, CHRISTOPHER GUY, BAKER, ZEYKO, BARBARA BARRY, BACCARAT, CHRISTOFLE, подобранных специально для этой квартиры. Гостиная, столовая и кухня — это единое пространство, оформленное в современном стиле. Парадное настроение помещению придают пол из натурального мрамора, отшлифованный до блеска, лакированные фасады кухни с инкрустацией из натурального камня, люстра из хрусталя, картины современных художников и живописцев, творивших в начале XX века, и стена, декорированная целиком мягкими панелями из замши благородного винного оттенка.





В таком же торжественном ключе выполнены и другие комнаты. Стены просторного холла и прихожей облицованы буазери, выполненными на заказ и тонированными в пыльно– розовый цвет, потолок украшает люстра из муранского стекла, а пространство — антикварные аксессуары в стиле ар–деко. В спальне использованы лак оттенка слоновой кости и пудры, панели из алькантары изысканного пастельного бежево–розового тона.
Анна Сахарова: «Мы стараемся, чтобы каждый наш проект был особенным, персонализированным. Создаём уникальные, продуманные интерьеры, которые максимально подчёркивают индивидуальность владельца, выдержат испытание временем и в которых наши заказчики будут счастливы»
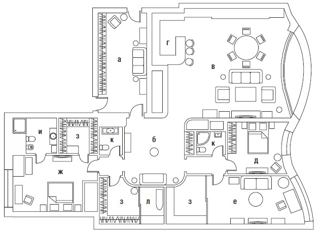
Общая площадь 240 м2

Авторы проекта дизайнер Анна Сахарова, Алиса Лобанова (дизайн–бюро Bellardo, г. Москва)
Изготовление межкомнатных дверей по индивидуальным чертежам мастерская «Квинтон»
Изделия индивидуального изготовления компания «Линамари»
Установка системы «умный дом» компания «Акустическое ателье»
