Чистый холст
Анастасия Золотарева и Аветис Газазян создали и реализовали для молодой семьи лаконичный, светлый интерьер в духе нестареющей классики, который можно по желанию разбавлять новыми деталями

Семейная пара хотела увидеть в своей квартире минималистичный, но нескучный интерьер с элементами неоклассики, который будет долго оставаться актуальным. Заказчики планировали ребенка и решили заранее организовать полноценную детскую, которая подойдет и мальчику и девочке, а еще удобную и красивую кухню.
«Мы до сих пор вспоминаем фразу, которую я озвучила на встрече: «сделаем нарядно, но не пошло», — рассказывает Анастасия Золотарева. — Лаконичные, строгие формы, никакой пестроты и ярких цветов — я бы даже сказала, что интерьер имеет более мужской характер. Он строгий, но я очень люблю сглаживать всё это за счет гипсовой лепнины с растительным орнаментом. Интерьер вне времени будет служить хозяевам долгие годы. При желании они смогут поменять декор, текстиль, добавить трендовые детали».







Аветис Газазян вспоминает, что реализацией шкафа с отделкой из натурального шпона в прихожей получилось удачно обыграть длинный коридор, создать визуальный эффект стеновых панелей, скрыв электроустановочный щит, и организовать большую зону хранения. Спальни разделили раздвижными перегородками — они корректируют пропорции за счет свободного места между спальнями и отделяют приватные зоны от общих. Арт-объекты, лепнина, вертикальные линии ненавязчиво нарушают однообразный ритм и превращают коридор в стильное и уютное пространство.
Несмотря на кажущуюся легкость цветов и материалов, Анастасия Золотарева признается, что всегда тщательно подбирает идеальные оттенки, даже если речь идет о белом и черном. «В квартире были оконные рамы графитового цвета, но из-за холодного подтона пришлось их перекрасить, — объясняет дизайнер. — Натуральный камень на стенах гостиной — Côte D’Azur — сам по себе имеет холодный тон, но нам удалось подобрать камни редкого теплого тона. Поработали мы и над сложными сценариями освещения и подсветки — теплотой света тоже можно управлять, есть специальный ночной режим».
«Реализация — важнейшая часть проекта, — продолжает Анастасия. — Отдельную благодарность мне хотелось бы выразить своему партнеру Аветису Газазяну, который изготовил «под ключ» мебель и предметы интерьера в квартире. Отдельно хотелось бы отметить мебель в ванной комнате и потрясающую детскую комнату, шкаф в прихожей, журнальные столики, стеновые панели в спальне, гардероб и многое другое. Грамотные менеджеры, чертежники, исполнение сложных узлов, а главное — сроки и последующая поддержка в эксплуатации! Порою нам кажется, что мы просто ставим себе цель и находим пути ее достижения, но на практике нельзя забывать и про дальнейшую поддержку достигнутых целей.
Любая система, декор, изделие либо предмет интерьера требуют грамотного и профессионального последующего обслуживания. Тем более если мы имеем в виду нестандартный подход в интерьере. Концепция нашей работы в области реализации предполагала наличие такого важного показателя качества, как бессрочная поддержка всех реализованных в проекте решений, что еще больше подкрепляло правильность решения заказчика в выборе нашей команды».







Интересная палитра материалов получилась в спальне с угловым остеклением — панели, обитые натуральной шерстью, латунь, зеркала, мрамор и шпон создают ощущение обволакивающей, теплой «шкатулки». Полы в жилых зонах выполнены из массива дуба. Детская комната, как и планировалось, получилась светлой и нейтральной, «на вырост», в бежево-охристых тонах. Ее украшает уютная фреска, а нижняя часть стен — самое уязвимое место в любой детской — покрыта практичными панелями из МДФ, которые легко протереть. Комфорт — еще одно важное слагаемое проекта. Системы хранения спроектированы с расчетом на ребенка: для детской на заказ изготовили функциональную мебель и вместительный шкаф, в квартире есть гардеробная и небольшая прачечная. Одно из пожеланий заказчика — удобная кухня: верхние шкафчики оборудованы электроприводом для удобства открывания и закрывания. «Особенную часть проекта составляет система «умный дом», — отмечает Аветис Газазян. — Высокая степень автоматизации инженерных систем, настроенные алгоритмы действий, автономность установленного оборудования — всё это отвечает современным требованиям проживания в квартире, а также помогает получать еще больше комфорта и удовольствия в быту». Особо впечатляет система автономного управления электрокарнизами штор. Из квартиры открывается живописная панорама на город с высоты птичьего полета. Система настроена таким образом, чтобы в вечернее время суток шторы раскрывались во время заката, открывая завораживающий вид на вечерний город, а в дневное время суток спасали помещение от палящего солнечного света. Всю систему «умный дом» и ее автоматизацию помог реализовать Сергей Поляков (Leberit).
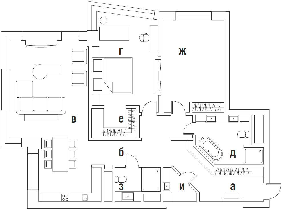
Общая площадь 134 м2

Автор проекта дизайнер Анастасия Золотарева Реализация проекта Аветис Газазян