Одна комната, а детей несколько? Есть решение!

ЛизаДизайн

Детская: дочке и сыночку

Одна комната, а детей несколько? Есть решение!

Статистика гласит: от года к году рождаемость в стране повышается. Однако, к сожалению, квартирный вопрос у многих молодых семей так и остается не до конца решенным. Например, мало кто может похвастаться более, чем одной детской комнатой в квартире. А как, спрашивается, разместить двоих, а то и троих детей в одной спальне. Особенно, если они разнопролые и отличаются по возрасту? С этим вопросом мы обратились к нашему эксперту.

1. ЗОНИРОВАНИЕ Каждому из детей нужно выделить свое пространство, где он будет полноправным хозяином. Правда, если дети маленькие и примерно одного возраста и им еще не нужно уединение, деление на зоны может быть довольно условным. Достаточно, чтобы у каждого было свое место для сна – остальное помещение можно смело отдавать под всевозможные игры.

У детей постарше уже есть свои интересы, и под них уже нужно целенаправленно выделять место. Особенно это актуально, если у детей достаточно большая разница в возрасте. Тогда старшему просто необходимо выделить приватную зону, где можно уединиться. Как это сделать? Можно разнести кровати по разным сторонам комнаты, а также использовать различные варианты перегородок. Например, стеллаж, шкаф, тумбу, этажерку, небольшую стену-разделитель из гипсокартона, штору или раздвижную ширму.

2. ПРАВИЛЬНАЯ МЕБЕЛЬ Если в квартире позволяет высота потолков, можно сделать подиум. Тогда сверху легко расположить рабочую зону или место для игр, а внизу (под подиумом) – выдвигающийся матрас: получится оригинальное, но при этом вполне комфортное спальное место. Кроме того, сейчас становятся все более доступны кровати-трансформеры. Модели бывают разными. Скажем, это может быть обычный с виду шкаф, в который (на дневное время) прячется кровать.

3. ДЕКОРАТИВНОЕ ВЫДЕЛЕНИЕ Самым главным инструментом зонирования в данном случае выступает, конечно же, цвет. Лучше всего всю комнату оформить в одном, не слишком ярком стиле. А декоративные детали уже сделать в разной цветовой гамме. Например, приобрести постельное белье с одинаковым рисунком, но разного цвета. А можно даже купить одинаковую по форме, но разную по цвету мебель. Главное, чтобы выбранные цвета хорошо сочетались между собой и выступали приятным визуальным дуэтом.

А если хочешь «увеличить» пространство, используй зеркала и вертикальные полосы в оформлении стен. Также попробуй поиграть с мебелью. Так, основную лучше купить универсальную, неяркого цвета и при этом самой простой формы. А вот тумбочки у кроватей сделать совершенно разными. Мальчику поставить, к примеру, металлический стеллаж, а девочке – изящную маленькую этажерку, которая придется по душе юной принцессе.

Кроме того, зонирование может быть осуществлено и при помощи света. Единственно в таком случае важно продумать, чтобы в каждой зоне было свое освещение, предусматривающее совершенно разные сценарии его использования. Ведь если маленький ребенок больше играет на полу, то школьник чаще сидит за письменным столом, а перед сном читает книги или смотрит телевизор в постели.

4. МАЛЕНЬКИЕ ДЕТАЛИ СОЗДАЮТ БОЛЬШОЙ УЮТ Коврики у кроватей сына и дочки лучше сделать разными. Как, впрочем, и изголовья. Стены рекомендуется украсить персональным декором (скажем, повесить над кроватями детей их имена или хотя бы первые буквы имен). Ну и, конечно, рекомендуется оформить особые места, где каждый ребенок сможет повесить или расставить свои персональные вещи, рисунки и поделки.

Татьяна Масленникова, дизайнер интерьера
@t_maslennikova_design

А на втором этаже...

Чтобы у двухярусной кровати не было казарменного вида, продумай все детали.

  • Постеры и фотографии на стене над спальным местом помогут создать персональное пространство для каждого ребенка.

  • Игрушки, текстиль: плюшевые зайцы и мягкие куклы, декоративные подушки, пледы сделают комнату уютнее и теплее.

Пример из практики

Дочка-подросток, занимается музыкой и чутко спит. Сыну 2 года. Необходимо организовать им по собственной спальне. Комната – 19 кв. м, есть окно и балконная дверь. Так как маленькому ребенку пока не нужно много места, решено разделить комнату легкой перегородкой из гипсокартона, сделав, таким образом, две отдельные спальни.

19 кв.м.
Помимо кроватей-трансформеров, есть такие же и столы – удобно!

Логичное решение

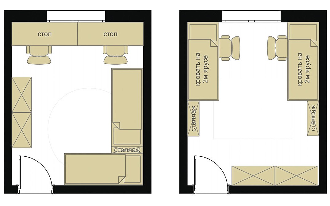
Отличный способ экономии пространства – двухъярусная кровать.

  • Можно просто «поселить» младшего ребенка внизу, а старшего – наверху.
  • Либо, если размер комнаты позволяет, поставить две или три одинаковых конструкции, в которых спальное место – вверху, а под ним находится рабочая зона.

Одинаковая форма и различные цвета – это просто и одновременно стильно.

Фото: Shutterstock, PR

Хочешь стать одним из более 100 000 пользователей, кто регулярно использует kiozk для получения новых знаний?
Не упусти главного с нашим telegram-каналом: https://kiozk.ru/s/voyrl

Авторизуйтесь, чтобы продолжить чтение. Это быстро и бесплатно.

Регистрируясь, я принимаю условия использования

Открыть в приложении